Please ensure Javascript is enabled for purposes of website accessibility

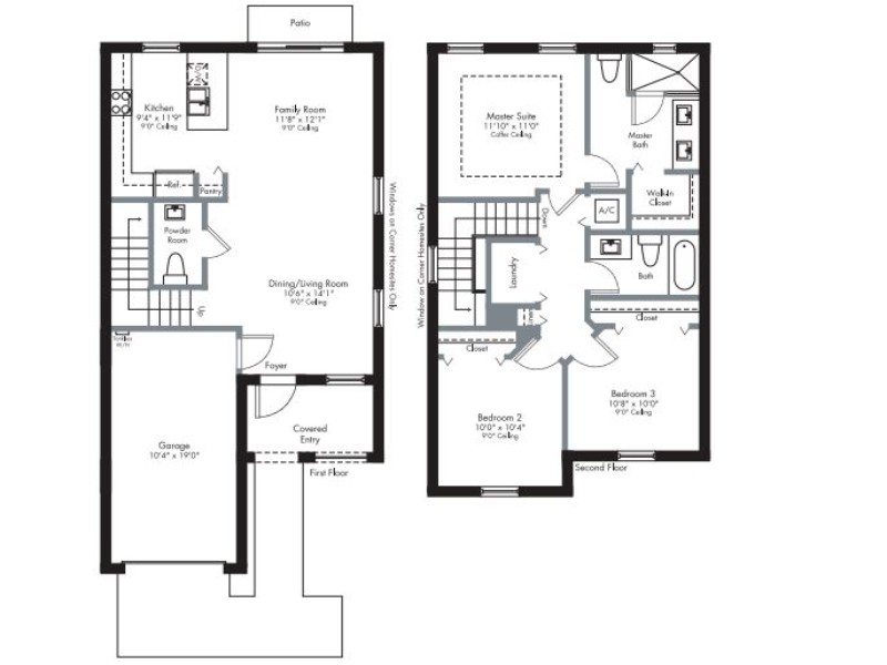
The Riviera: Rio Collection - Avignon

From USD 411,990

Homestead ,33033 ,Florida







Request more information

Lorena Ubaldo

+1 561 524 9051

lorenaurealtor@gmail.com

VIVENTI REALTY

You may also like

The Riviera: Laguna Collection

From USD 394,990

The Riviera: Laguna Collection - Bandol

From USD 394,990

The Riviera: Laguna Collection - Casis

From USD 395,990

National Association Realtors

Equal Housing

floridarealtors

REALTORS Logo